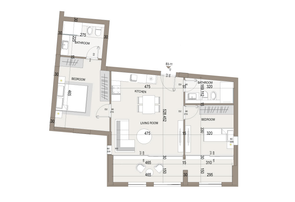
PALACINA B3
Apartment
B3-11
Floors
3
Topology
2+1
Living Area
92,07 m²
Common Area
21,53 m²
Total Area
113,6 m²
Yard Area
-
Apartment Position
3D Render View