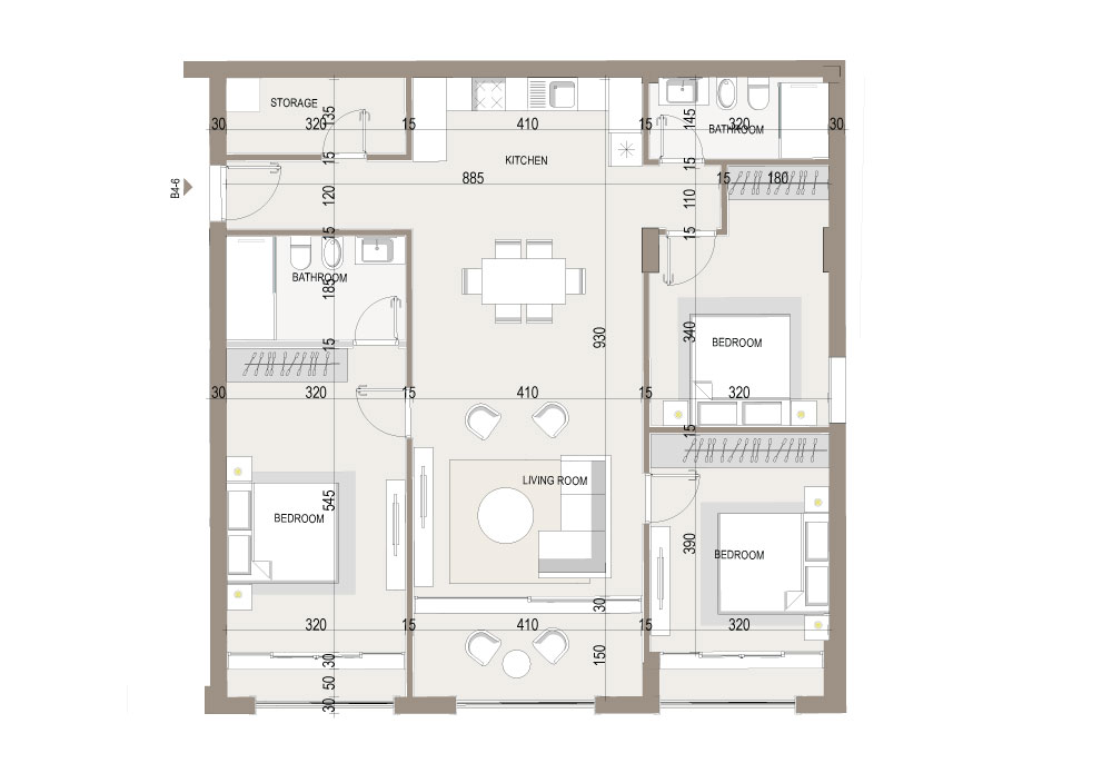
PALACINA B4
Apartment
B4-6
Floors
1
Typology
3+1
Living Area
132,20 m²
Veranda
-
Common Area
26,37 m²
Total Area
158,57 m²
Apartment Position
3D Render View