Skip to content
Home
About Us
Villas
Apartments
Location
Home
About Us
Villas
Apartments
Location
contact
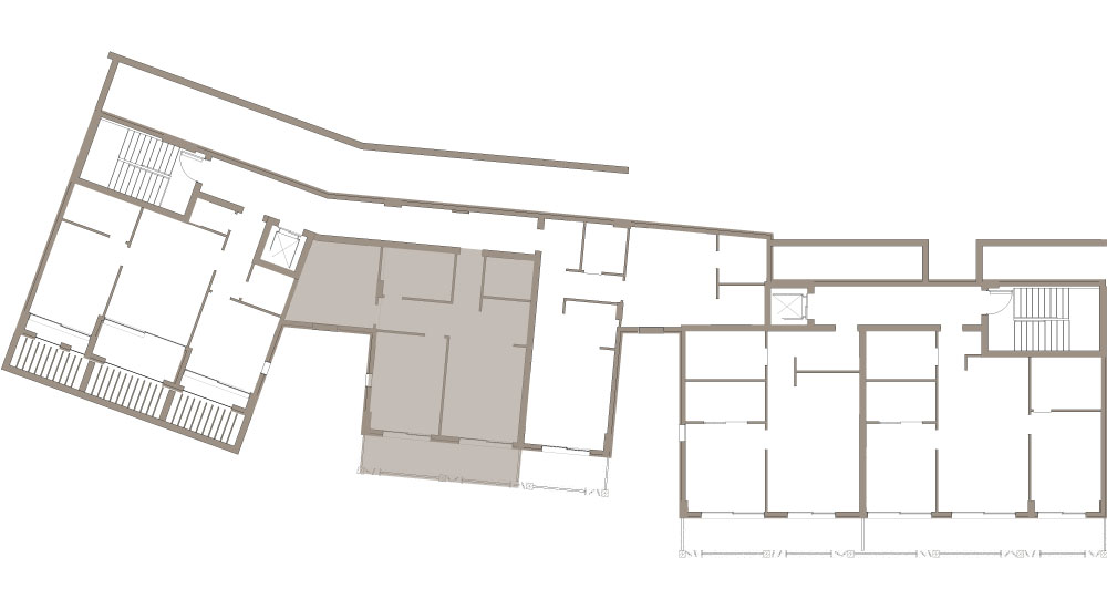
PALACINA A2
Apartament
A2-11A
Floor
3
Typology
2+1
Living Area
83,36 m²
Veranda
13,32 m²
Common Area
24,71 m²
Total Area
121,39 m²
Download Brochure
Apartment position
3D render view
Kreu
Rreth Nesh
Vila
Apartamente
Vendndodhja
Kontakt
Kreu
Rreth Nesh
Vila
Apartamente
Vendndodhja
Kontakt