Skip to content
Home
About Us
Villas
Apartments
Location
Home
About Us
Villas
Apartments
Location
contact
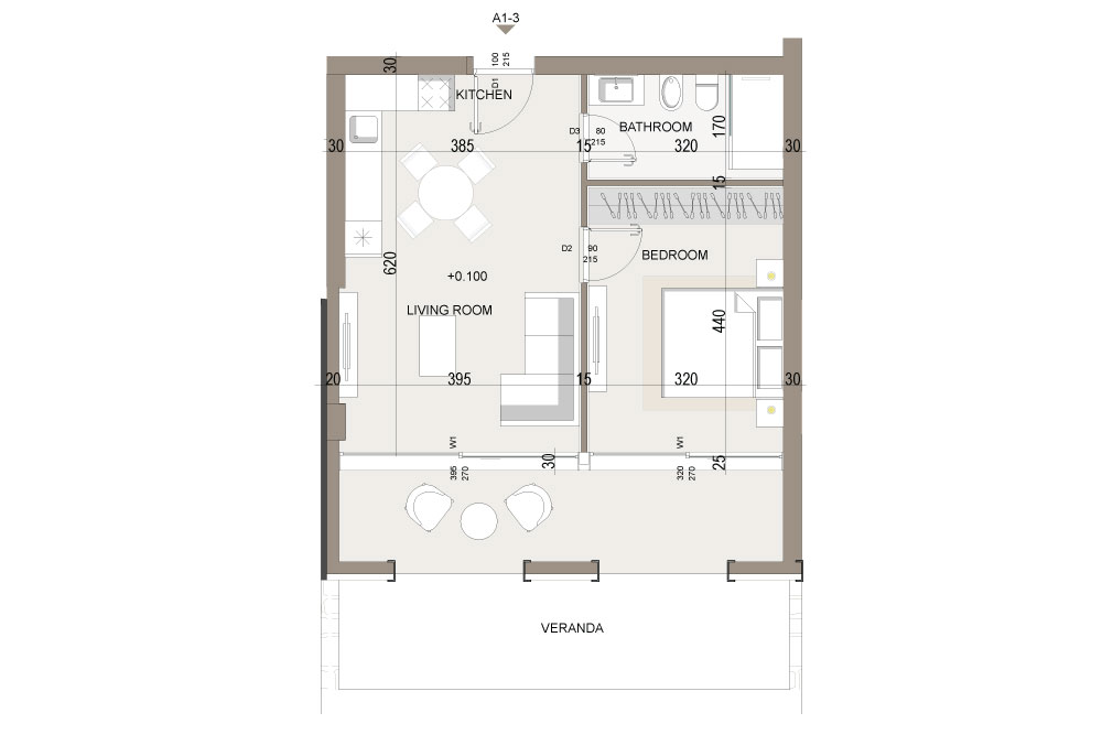
PALACINA A1
Apartament
A1-3
Floor
0
Typology
1+1
Living Area
71,21 m²
Veranda
17,16 m²
Common Area
16,60 m²
Total Area
104,97 m²
Download Brochure
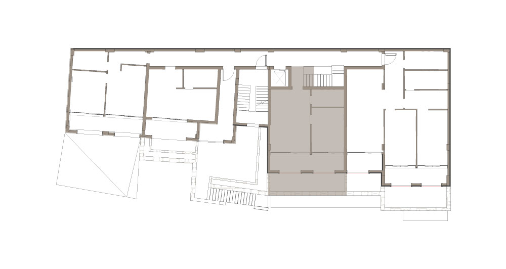
Apartment position
3D render view
Kreu
Rreth Nesh
Vila
Apartamente
Vendndodhja
Kontakt
Kreu
Rreth Nesh
Vila
Apartamente
Vendndodhja
Kontakt